Zum Hauptinhalt springen

Königstr. 15, Schwabach

Kategorie

Sanierung

Bauherr

Königstraße fünfzehn – Schwabach-Grundstücksgesellschaft GmbH & Co. KG

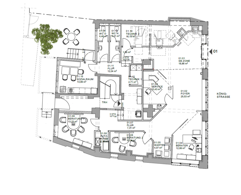
Den ehemaligen, leerstehenden Ladengeschäften der Fischer Passage wurde durch aufwendige Umbau- und Sanierungsmaßnahmen einer neuen Nutzung zugeführt. In der Königstraße 15, im Herzen von Schwabach, wurde eine neue, moderne Bankfiliale untergebracht, das Ensemble der Königstraße blieb dabei erhalten.