Zum Hauptinhalt springen

Zeughausgasse 12, Roth

Kategorie

Umbau und Sanierung

Bauherr

Stadt Roth

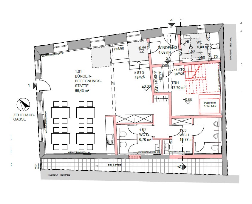
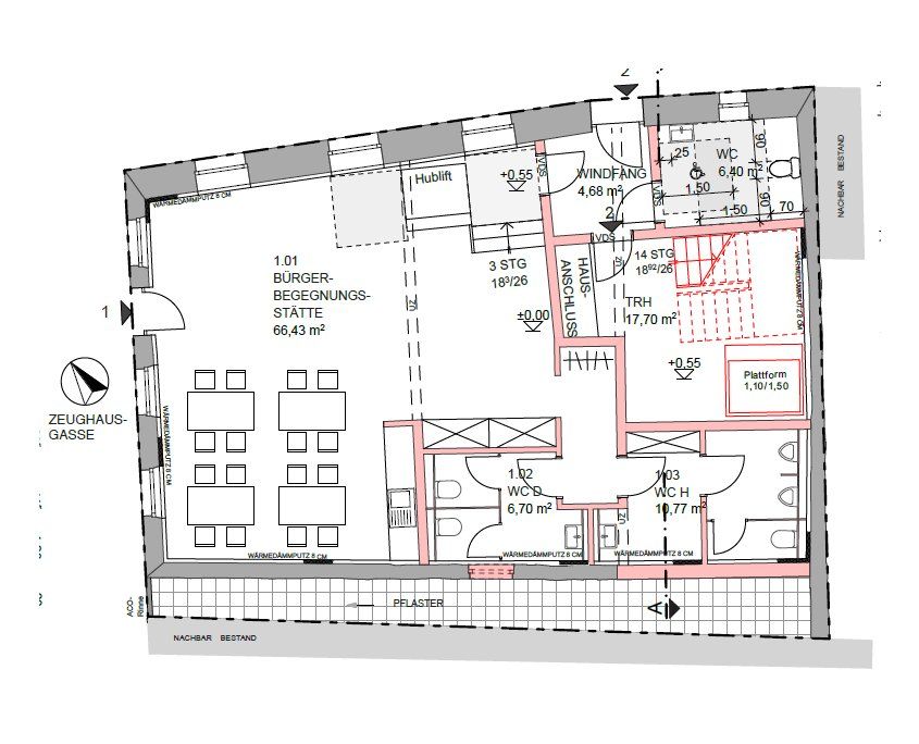
Durch eine komplette Sanierung erstrahlt das verfallene frühere Zeughaus Stüberl in der Zeughausgasse 12, Roth wieder in neuem Glanz. Die Bereiche Stadtplanung und Städtebauförderung der Bauverwaltung der Stadt Roth ist in das Ober- und das Dachgeschoss eingezogen, im Erdgeschoss wurde Platz für einen Bürgertreff geschaffen.